Search Reynolds Lake Oconee Real Estate Listings
Register for free for full access to all Reynolds Lake Oconee homes for sale. You'll also unlock access to free search tools, including the ability to save listings and property searches. You can also sign up for custom-tailored searches that send new listings directly to your email address. Check out our how-to page for more info.
- Price$800,000
- Beds4
- Baths3½
- SQ. Feet2,709
- Acres1.05
- Built2025
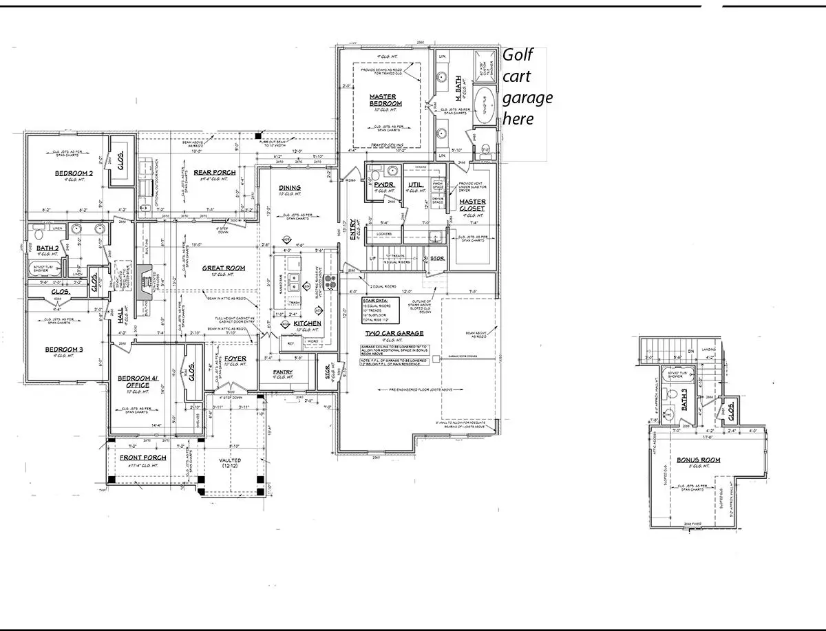
1159 Winged Foot Drive, Greensboro
Wow! Give yourself a gift with 20% price improvement on a gorgeous golf front estate. Perfectly sized with every upscale finish, this new home overlooks the #1 and #9 holes with sweeping golf course views. Stone accents highlight both the front elevation and the rear screened porchâalready stubbed for an outdoor kitchen and sink. A true split ranch design, it offers 4 bedrooms and 3.5 baths on the main level plus an additional bath in the upstairs flex/bonus suite. Inside, enjoy a chefâs kitchen with a commercial-style gas range, microwave drawer, and tankless gas water heater. The oversized two-car garage (with epoxy flooring) includes an adjacent golf cart bay and electric car charging outlet. The primary suite features a freestanding soaking tub, separate shower, dual vanities, and a huge custom closet with direct access to the laundry and mudroom. Built expertly by Coldwater Homes and nearing completion for a quick move in so you can enjoy all the amenities Harbor Club has to offer â golf, lake, pool, clubhouse, Marina, pickleball, social activities and so much more!
Essential Information
- MLS® #69741
- Price$800,000
- Bedrooms4
- Bathrooms3.50
- Full Baths3
- Half Baths1
- Square Footage2,709
- Acres1.05
- Year Built2025
- TypeResidential
- Sub-TypeSingle Family, Golf Comm Home on Course
- StyleRanch, Craftsman Style
- StatusACTIVE
- Lake AccessSubdivision Access
- Dock ViewSubdivision Access
Amenities
- FeaturesPaved Driveway, Paved Walkway, Professional Landscaping
- Garages2 Car Attached, Golf Cart Garage
- WaterfrontNone
Exterior
- ExteriorHardy Board, Stone
- Exterior FeaturesCovered Patio, Covered Porch, Screened Porch
- Lot DescriptionGentle Slope, Open
- RoofAsphalt/Comp Shingle
Listing Details
- Listing OfficeHarbor Club Properties
Community Information
- Address1159 Winged Foot Drive
- AreaLake Oconee Area
- SubdivisionHARBOR CLUB
- CityGreensboro
- CountyGreene
- StateGA
- Zip Code30642
Interior
- InteriorTile, Wood
- Interior FeaturesSmoke Detector, Primary on Main
- AppliancesBuilt in Microwave, Microwave, Range, StainlessSteel Appliances
- HeatingElectric, Heat Pump
- CoolingCentral Electric, Heat Pump
- Has BasementYes
- BasementSlab
- FireplaceYes
- FireplacesMasonry Fireplace, Prefab Fireplace
- Stories1 1/2 Story
Additional Information
- Date ListedNovember 5th, 2025
- ZoningResidential
- HOA Fees1800
© 2016 Lake Country GA MLS. All rights reserved. The data relating to real estate for sale on this web site comes in part from the Internet Data Exchange Program of LCGAMLS and is exclusively for consumers' personal, non-commercial use, and it may not be used for any purpose other than to identify prospective properties consumers may be interested in purchasing. Information provided is deemed reliable but not guaranteed. Date last updated: Saturday, February 14th, 2026.
































































